壁から天井までしっかりと断熱。スケルトンで希望を叶えて、快適になった自宅リノベ。
物件概要
| 家族構成 | 2人暮らし |
|---|---|
| 築年数 | 30年 |
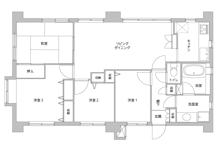
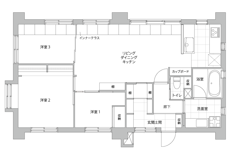
| 間取り | 4LDK→3LDK |
| 専有面積 | 約76㎡ |
|---|---|
| 工事費総額 | 約2340万円 |
| 種類 | 自宅リノベーション |
東京都 М様
「新築から30年ほど経ち、水回りの老朽化を感じながら暮らしていました」と、リノベーションまでの日々を振り返るМ様。
お子様が独立して数年。いつかリノベをしよう、リノベをする時に家具も買い替えようと、設備やインテリアなどに我慢をしながら過ごしてきた。
「一番気になっていたのは寒さだったので、断熱が得意そうなリノベーション会社を知人に数社ピックアップしてもらい、ようやく具体的に相談することになりました」
その中のひとつがインテリックス空間設計。
「デザインで遊ぶよりシンプルで過ごしやすいことが一番と思っていたので、インテリックス空間設計の事例を見てここなら大丈夫と感じました」と奥様。
実際に相談に訪れ、断熱やフラットな床など、希望する居心地の良さをきちんと叶えてもらえると感じたので、いよいよリノベーションに踏み切ることになった。
断熱材とインナーサッシで驚くほど快適
最上階の角部屋なこともあり冬には暖房代をかけてもまったく暖まらず、結露すらできないほど寒いことが最大の悩みだったМ様。
そこで壁はもちろん天井にも断熱材を入れ、すべての窓にインナーサッシを付けた。
まだ夏場しか経験していないが、
「今までの夏は、外気の熱が壁にこもっているのが感じられましたが、それがすっかりなくなりました。外窓と内窓の間の空気は熱くなっていたものの室温にはまったく影響がなく、猛暑日でも29℃に設定したリビングのエアコン1台で十分快適に過ごせました」と満面の笑み。冬はエアコンが不要かもしれないと期待に胸を膨らませている。

さらに、インナーサッシのおかげで思わぬ効果も。
「びっくりするほど静かになりました。車の音はサイレンくらいしか聞こえないし、ゲリラ豪雨の時でも雨の音がしないんです」と、その遮音性に感動しきりだった。
床を上げたらドアもカーテンも天井吊りに
もう一つの大きな希望は、家の中をフルフラットにすること。
「水回りだけ一段高くなっていたんですが、以前足を骨折した時に少しでも段差があるとトイレに行くのもツラいし暮らしにくいと感じたんです」と奥様。

水回りに合わせて床を全体に上げたので天井が少し低くなったが、
「打ち合わせの時に天井の高さは225cmになりますと言われてイメージができなかったのですが、リノベーションスタジオのエレベーター前でここと同じですと実際の高さを教えてもらえたから安心して決断できました。
圧迫感が出ないようにドアやカーテンレールは天井から吊ったので、天井が低いとはまったく思いません」と納得の表情。

旦那様の悩みは、リビングダイニングが細長くてソファーをうまく置けなかったこと。
「リノベーションを機にダイニングテーブルとソファーを買うことを決めていたので、家具を置いても通路が狭くならないぐらいのスペースを確保したいと思っていました。十分な広さになり大満足です」
奥の洋室のドアは普段は開け放っているので、洋室まで貫くようにインナーテラスを設置。奥様は趣味である室内ガーデニングを心置きなく楽しめているそう。
オープンだからこそたっぷり収納可能
М様のこだわりはスペース活用と収納にも光る。
「とにかくデッドスペースをなくしたくて、すべて引き戸にしました」
そして収納はすべてオープンにして、カーテンやロールスクリーンで目隠しすることに。
「扉がなければ収納の幅ギリギリの物も入れられると以前から思っていたんです。さらに可動棚にすることで、フレキシブルに収納できるようになりました」

土間を作り回遊性を持たせた玄関にもオープン棚が充実。
土間の棚にはキャンプ用品やガーデニング用品、タイヤなど屋外で使う物を。廊下の棚には、掃除用具や雑貨など家の中で使う物を収納した。
また、広い土間を設けたことで窓のある玄関になり、外から光が入るように。
「リビングドアにガラスを使ったので、リビング側からも玄関に光がたっぷりと差し込むんですよ。昼でも照明が必要なほど暗かった玄関が、すっかり明るくなりました」と旦那様。
エアコンも照明も使用頻度がグッと減り、エコな家に生まれ変わったようだ。
家のどこにいても明るく開放的
キッチンを対面にしたのは、奥様の強いご希望。キッチンからテレビを見たいので、リビングには角度を変えられる壁掛けテレビを設置した。

「作業スペースが広いⅡ型キッチンにして、とても使いやすくなりました。オープンになったので見晴らしが良くて気持ちがいいですし、もちろんテレビも楽しめています」と満足そう。
以前はパソコンをリビングで使用していたが、在宅勤務をすることもあるので、きちんとしたデスクスペースを作ることに。

「室内窓があると孤独感がないですよ、と勧められました。壁より室内窓の方が、部屋が明るくなりますしオシャレですよね。ステンドグラスシールで装飾するのもいいかなと考えています」
掃除や収納がラクラクな理想の家に

当初のご希望通り、とにかく使いやすく快適な家を目指したМ様。
お掃除は苦手ということで、キッチンや洗面には汚れを拭き取りやすいようにパネルを貼り、脱衣所や玄関、トイレには防汚・防カビ・防水・消臭などの機能性クロスを使用。
「キッチンやカップボードの扉も、いつでもピカピカに見える鏡面素材にしました。収納も、玄関の棚にはキャンプ用品、デスクスペースの収納には季節用品など、しまうところが決まったのですぐに片付けられるようになりました」と笑う。

「収納、掃除、趣味など、何をどうしたいか、何を持っているか、どんな風に暮らしたいかを具体的にイメージしたので、満足度が高い仕上がりになったのかもしれません」と話す奥様。
旦那様は「インテリックス空間設計は、みなさんいつも穏やかでフレンドリー。それでいて、こちらの要望に応えるために、フラットな床や開け放てる引き戸など攻めたプランを考えてくれたように思います。それに30年前よりも素材や機能がすべて進化しているので、家が格段に快適になりました」と嬉しそうに笑った。
BEFORE

AFTER
























