63㎡に家族6人。スペースを巧みに使い、プライバシーもゆとりもある住まいを実現。
物件概要
| 家族構成 | ファミリー |
|---|---|
| 築年数 | 27年 |
| 間取り | 3LDK→2LDK |
| 専有面積 | 約63㎡ |
|---|---|
| 工事費総額 | 約1870万円 |
| 種類 | 自宅リノベーション |
東京都北区 S様
4人の女の子の笑い声が響くS様のお家は約63㎡。
小中学生になる子供たちが集中して勉強できるスペースが欲しいけれど、通学しやすいこの家は気に入っているので、引っ越さずにリノベーションで解決することにした。
「コンセプトは、6人家族のいい思い出が残る家の実現です」と、この機会に叶えたい希望をリストアップしたという旦那様。
「間取り図を切ってパズルのように組み合せては、建築士さんにプロの視点で丁寧にアドバイスをもらうというやり取りを何度も重ねて、納得できるプランを考えていきました」と振り返る奥様。
奇抜な案もあったそうだが、お子様が独立した後にも暮らしやすい家にしたいという将来的な希望も盛り込み、最後にはシンプルな形に落ち着いたと微笑む。
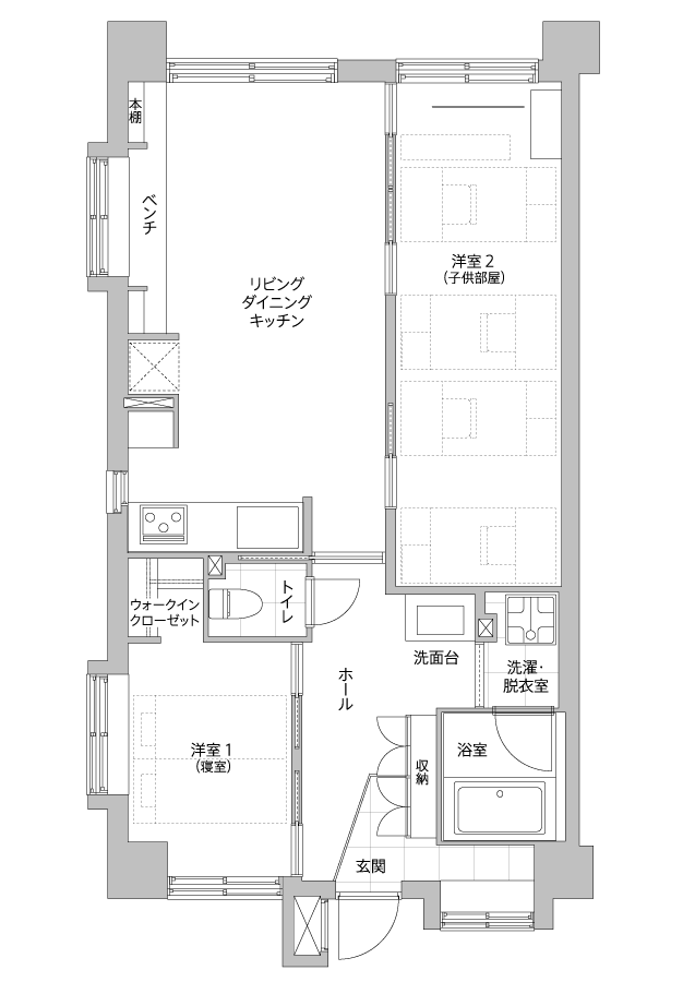
ロフトベッドを使い、集中できる空間を

リビングダイニング脇の引き戸を開けると、4台のロフトベッドがずらりと並ぶ。
「子供たちにパーソナルスペースをあげたいけれど、面積は限られているので、カプセルホテルのように立体にするしかないと思い、空間を縦に使うことにしました」と旦那様。

部屋にこもるようにはしたくなかったという奥様が、「普段はドアを開けているので、それぞれがどう過ごしているのかがわかって安心です」と話すと、子供たちも「自分の机ができたから勉強に集中できるようになった」と笑顔で続ける。
ベランダへのアクセスを確保するため、窓際には電子ピアノと収納スペースを設けた。室内干しをしたいという奥様の希望で、ここには物干し用のアイアンバーも設置。
窓からの光は子供部屋にはもちろん、リビングにもしっかりと差し込んでくる。
6人でゆったり過ごせるキッチンからリビング

お子様も含めて3人は一緒に立ちたいと望んだ広いキッチン。一番下のお子様が小学生になったので、見守りよりもLDKの広さを重視してⅠ型にした。
「キッチンに立っている時、子供たちがリビングで遊んでいる気配を背中で感じるくらいがちょうどいいんです。マンガを読んでいる姿が目に入ると、ついついひとこと言ってしまいますから」と笑う奥様。
そんな話をしている間も、4人はソファーやベンチでくつろぎながらマンガを楽しんでいる。

リビングダイニングのアイコン的存在となったベンチは、下にも本がたっぷりと収納されている。本棚の向きはいろいろと検討したが、
「ベンチで本を読んでいたらきっと背もたれがほしくなるだろうと思い、側板に寄りかかれる今の向きにしました」
そう旦那様が考えた通り、奥様はベンチでお茶を飲みながら本棚に寄りかかり、足を伸ばしてくつろいでいるとか。
空間を広く取り、玄関や洗面の渋滞を解消
玄関は複数人で靴を履けるように広さを確保。大きな収納には6人分の靴のほか、生活雑貨や洗面用具も収まっている。
玄関と洗面はフラットに続き、朝は廊下に置いた姿見でも身支度を整えられることから渋滞が解消。脱衣所はカーテンで仕切り、入浴中でも洗面を気兼ねなく使える。
「玄関も洗面も、いつも悩まされていた順番待ちの小競り合いが減りました」と奥様はニッコリ。広いスペースを、玄関にも廊下にも洗面にも活用できる空間使いが、6人家族のスムーズな動線を支えている。

また、玄関脇の部屋は明るいのに、玄関だけが暗いことが悩みだったという奥様。
ベッドがピッタリ収まるように設計された寝室には、ベッドの左右どちらからでも入れるように引き戸を2枚設けた。引き戸を開けると、寝室の窓から玄関にしっかりと光が入る。
「もうひとつの窓からの光も活かすために作った細長い土間は、荷物の仮置きに便利です。それに、まだスペースに余裕があると思えることが、心の余裕にもつながっていると思います」と笑顔を見せた。
フローリングとインナーサッシは妥協せず
質感を大切にしたというフローリングは、空間を途切れさせないように見切り材を使わずひと続きに。
「寝室や子供部屋のフローリングはランクを下げることも考えましたが、区切りを付けず家を広く見せることを重視しました。
抜け感が気持ちいいので、妥協しなくて本当に良かったです」と満足そうな旦那様。

また、結露対策のためインナーサッシを入れたおかげで、遮音・防音性が抜群に上がったとか。
「インナーサッシの分、さらに室内が狭くなるかと思いましたが、まったく気になりませんでした。楽器の練習をしても、外に音が漏れずに済んでいます」と奥様も安心そうな表情だ。
要望をすべて盛り込んだうえで、驚きの広さに

改めて最初の要望書を見直し、「ほぼすべて叶っていますね」と満足そうに微笑む旦那様。
子供たちのパーソナルスペースができたことはもちろん、リビングダイニングにキッチン、バスルームや玄関もすべて広くなり、ソファーやベッドも置けるようになったが、
「なぜか以前より広くなったと感じます」と不思議そうに家を見渡す。

リノベーションの魅力は家をカスタマイズできることだと改めて実感したが、こだわりがあるほどオリジナリティーが強くなるので、要望をとにかく言語化して良かったと振り返る。
「こだわりは強かった私たちですが、フラットにコミュニケーションを取れる建築士さんと、疲れ知らずで付き合ってくれるプランナーさんのおかげで最適解が出ました。そんな良きパートナーであるインテリックス空間設計に出会えたことが、何よりも幸運だったと思います」と満面の笑みを見せた。
BEFORE

AFTER


























