

※表示される航空写真・地図・施設情報はデータ作成時点のものであり、現状と異なる場合があります。 ※地図上に表示される建物マークのアイコンは、実際の所在地とは異なる場合があります。 ※物件によっては、アイコンが表示されない場合があります。

| 物件名 | 天王寺パークマンション | ||
|---|---|---|---|
| 所在地 | 大阪府大阪市 東住吉区桑津2丁目7-3 | ||
| 価格 | 2,480万円(税込) | 物件種別 | マンション |
| 交通 |
近鉄南大阪線「河堀口」駅徒歩7分 阪和線「美章園」駅徒歩10分 大阪環状線「寺田町」駅徒歩15分 |
||
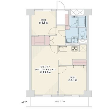
| 間取り | 2LDK | 築年月 | 1978年05月 |
| 専有面積 | 54㎡ | 所在階/階建 | 6階/地上7階 |
| バルコニー面積 | 5.81㎡ | 主要採光面 | 南東 |
| 総戸数 | 52戸 | 建物構造 | RC |
| 土地権利 | 所有権 | ||
| 現況 | 空家 | 引渡し時期 | 相談 |
| 管理形態 | 全部委託(三井不動産レジデンシャルサービス関西株式会社巡回方式) | ||
| 管理費 | 10,370円 | 修繕積立金 | 6,800円 |
| 駐車場(空数) | 空有 | 駐車場料金(月額) | 20,000円 |
| 備考 | エレベーター 事務所使用不可・ペット飼育不可 |
||
| 学区 | - | ||
| 取引態様 | 売主 | 管理番号 | S0055 |
| 情報更新日 | 2026/04/23 | 次回更新予定日 | 随時 |
