

※表示される航空写真・地図・施設情報はデータ作成時点のものであり、現状と異なる場合があります。 ※地図上に表示される建物マークのアイコンは、実際の所在地とは異なる場合があります。 ※物件によっては、アイコンが表示されない場合があります。

| 物件名 | ファミール宮の森Ⅱ | ||
|---|---|---|---|
| 所在地 | 北海道札幌市 中央区宮の森 三条7丁目1-40 | ||
| 価格 | 3,590万円(税込) | 物件種別 | マンション |
| 交通 |
札幌市東西線「西28丁目」駅徒歩12分 |
||
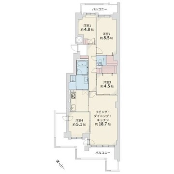
| 間取り | 4LDK | 築年月 | 1994年03月 |
| 専有面積 | 93.85㎡ | 所在階/階建 | 4階/地上6階 地下1階 |
| バルコニー面積 | 25.81㎡ | 主要採光面 | 南西 |
| 総戸数 | 37戸 | 建物構造 | RC |
| 土地権利 | 所有権 | ||
| 現況 | 空家 | 引渡し時期 | 即時 |
| 管理形態 | 全部委託(エムエムエスマンションマネージメントサー ビス株式会社通勤方式) | ||
| 管理費 | 10,510円 | 修繕積立金 | 24,440円 |
| 駐車場(空数) | 空有 | 駐車場料金(月額) | 12,000円 |
| 備考 | ●物件の特徴 ・広々LDK18.7帖 ・2面バルコニー ・ペット飼育相談可 ●本体設備 エレベーター・オートロック ●備考 ・事務所使用不可 ・ペット飼育不可(要承認・飼育細則有)(犬または猫はあわせて1住戸2頭迄) ・トランクルーム1住戸1区画利用可(使用料不要) |
||
| 学区 | 宮の森小学校 180m 向陵中学校 1100m |
||
| 取引態様 | 売主 | 管理番号 | R1177 |
| 情報更新日 | 2026/04/12 | 次回更新予定日 | 随時 |
この物件をご覧の方には、こちらの物件もおすすめです




万円(税込)
北海道札幌市 中央区南十二条西23丁目1-43




万円(税込)
北海道札幌市 中央区南二十三条西12丁目1-3




万円(税込)
北海道札幌市 中央区南一条西26丁目1-5




万円(税込)
北海道札幌市 中央区北四条東2丁目7-1
