

※表示される航空写真・地図・施設情報はデータ作成時点のものであり、現状と異なる場合があります。 ※地図上に表示される建物マークのアイコンは、実際の所在地とは異なる場合があります。 ※物件によっては、アイコンが表示されない場合があります。

| 物件名 | ザ・パークハウス小石川後楽園 | ||
|---|---|---|---|
| 所在地 | 東京都文京区小石川2丁目2-13 | ||
| 価格 | 23,980万円(税込) | 物件種別 | マンション |
| 交通 |
東京メトロ丸ノ内線「後楽園」駅徒歩1分 東京メトロ南北線「後楽園」駅徒歩1分 都営大江戸線「春日」駅徒歩1分 |
||
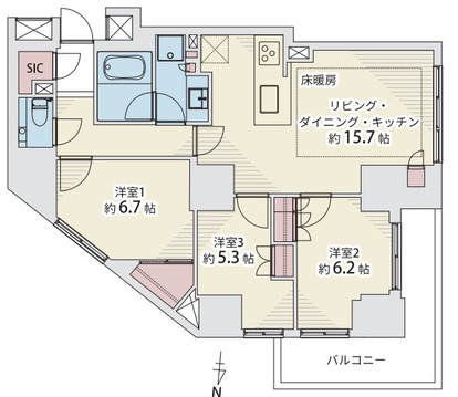
| 間取り | 3LDK | 築年月 | 2012年09月 |
| 専有面積 | 76.72㎡ | 所在階/階建 | 6階/地上14階 地下1階 |
| バルコニー面積 | 9.43㎡ | 主要採光面 | 北西 |
| 総戸数 | 115戸 | 建物構造 | RC |
| 土地権利 | 所有権 | ||
| 現況 | 空家 | 引渡し時期 | 相談 |
| 管理形態 | 全部委託(三菱地所コミュニティ株式会社通勤方式) | ||
| 管理費 | 15,810円 | 修繕積立金 | 29,620円 |
| 駐車場(空数) | 空無 | 駐車場料金(月額) | - |
| 備考 | エレベーター・オートロック 事務所使用不可 ペット飼育相談(要承認・飼育細則有) |
||
| 学区 | - | ||
| 取引態様 | 売主 | 管理番号 | S0095 |
| 情報更新日 | 2026/05/27 | 次回更新予定日 | 随時 |
